Torre Modernista

Chalet Independiente en venta en Sant Feliu de Llobregat, Barcelona (Centre)

Sant Feliu de Llobregat (Centre)

Ref. 3841 359 m2 80 m2 7 2 1
venta: 1.100.000 

CALVET les presenta en exclusiva esta magnifica propiedad singular con gran valor histórico y arquitectónico en venta; conocida como Cal Berna, situada en una zona tranquila y bien comunicada en el centro de Sant Feliu de Llobregat. Se trata de una casa señorial de veraneo construida en el año 1911 por el reconocido arquitecto modernista Gabriel Borrell i Cardona, por encargo de Francesc Folch i Torras, miembro destacado de la burguesía catalana de principios del siglo XX.

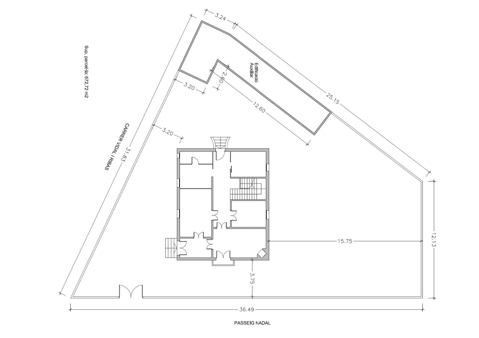
Torre señorial modernista en venta en el centro de Sant Feliu de Llobregat Obra de Gabriel Borrell i Cardona (1911) – 360 m² construidos sobre parcela de 675 m²

Características principales:

• Superficie construida total: 360 m²

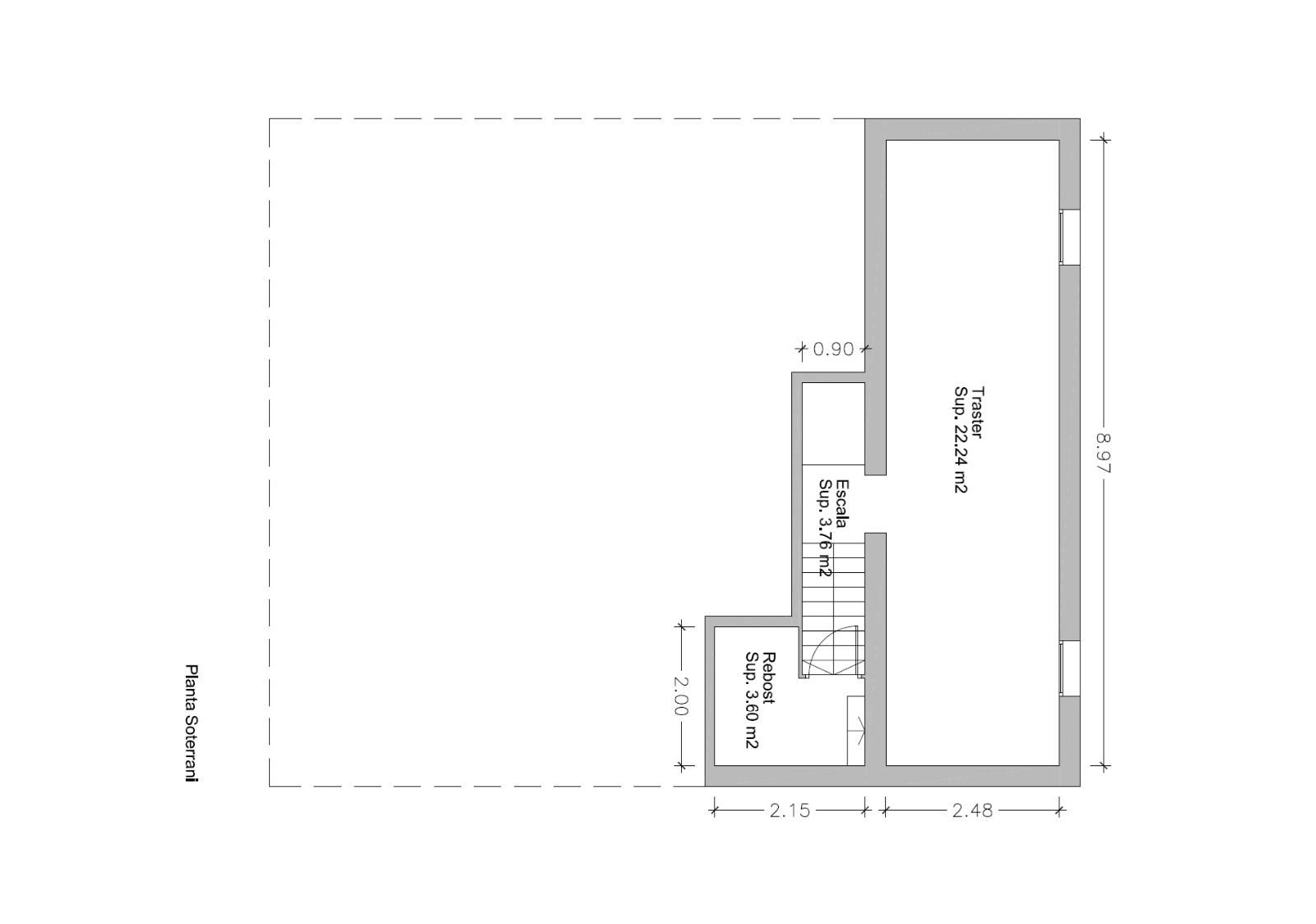
o Planta sótano: 80 m²

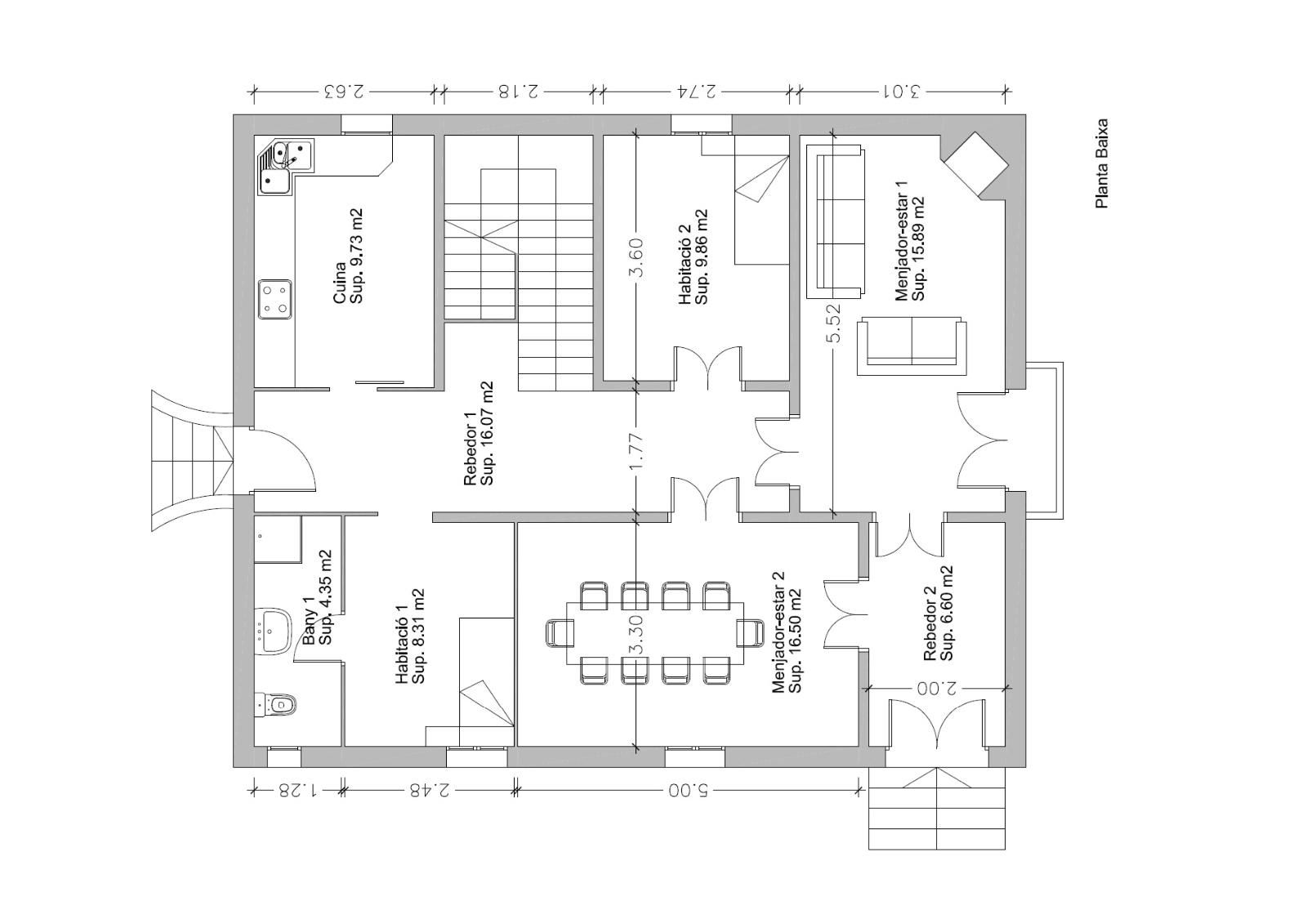
o Planta baja: 140 m²

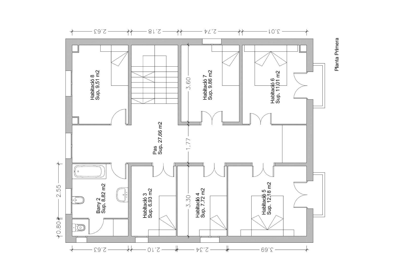
o Primera planta: 140 m²

• Parcela: 675 m² con jardín perimetral

• Tipología: Casa unifamiliar aislada con acceso rodado

Distribución:

• Planta sótano: espacio polivalente ideal como almacén, bodega o sala técnica

• Planta baja: zonas de día con estancias amplias, techos altos y aberturas originales

• Primera planta: zona de noche con varias habitaciones y baños (a reformar o redistribuir según proyecto)

Elementos arquitectónicos originales:

• Fachadas con esgrafiados de motivos naturalistas, molduras decorativas y balcones con balaustradas clásicas

• Aberturas de formas redondeadas, con remates decorativos y simetría vertical

• Coronación ondulada con barandillas de forja artística que aportan ligereza al conjunto

• Cubierta plana transitable (terrado a la catalana), propia del estilo noucentista

• Cerramiento con muro de obra y reja de hierro forjado

• Jardín privado que rodea toda la casa y garantiza una intimidad total

• Entrada con espacio para vehículos

Valor patrimonial y potencial de uso:

Esta finca representa una pieza única del patrimonio local y un claro ejemplo del modernismo tardío en la comarca del Baix Llobregat. Es una oportunidad excepcional para compradores con sensibilidad histórica, o para proyectos de reconversión con enfoque cultural, residencial o institucional, tales como:

• Vivienda exclusiva

• Centro cultural, fundación o sede corporativa

• Residencia artística o espacio expositivo

• Hotel con encanto o iniciativa de turismo cultural

Observaciones:

• La edificación conserva numerosos elementos originales y ofrece un gran potencial de rehabilitación integral o restauración con criterios patrimoniales

• Información urbanística y detalle de la catalogación disponible bajo solicitud

________________________________________

Para más información, dossier técnico completo o concertar una visita, no dude en ponerse en contacto con nosotros.

Una joya arquitectónica a solo 15 minutos de Barcelona.

Índice de alquiler

Año de construcción 1911
Construidos 359 m2
Útiles 250 m2
Parcela 675 m2
Precio/m² 3.064
Terraza 80 m2
Dormitorios 7
Baños 2
Trastero
Garajes 1
Carp. Exterior Madera
Carp. Interior Madera
Orientación Sur-Oeste
Estado A Reformar
Tipo de suelo Mosaico hidráulico
Calificación Energética (F) VER
Luz
Agua
Alarma interior
Rejas en ventanas

Visita Virtual

Vídeos

Solicita información

Si deseas más información sobre esta propiedad, por favor, rellena el formulario:

Contacto
Nos avalan
SÍGUENOS EN REDES
logo