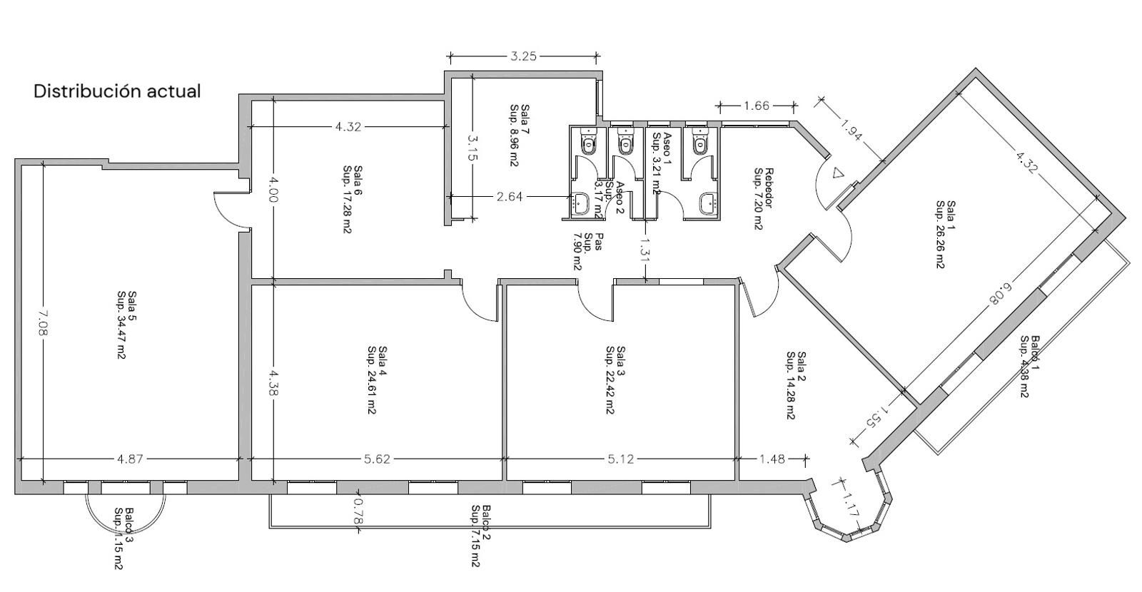
En el corazón del Eixample barcelonés, allí donde los tilos flanquean el paseo más elegante de la ciudad, se alza esta propiedad excepcional de 188 m² que redefine el concepto de amplitud y distinción. Ubicada en la emblemática Rambla de Catalunya, esta vivienda se desprende de las distribuciones convencionales para ofrecer una experiencia de vida volcada por completo al exterior. Su fachada es un tributo a la arquitectura señorial, jalonada por siete balcones clásicos y una elegante tribuna que actúan como miradores privilegiados.
Las imágenes elaboradas con inteligencia artificial que acompañan este anuncio se han incorporado únicamente con el propósito de facilitar a los posibles interesados la proyección del resultado de una posible reforma y configuración de la vivienda.
Para más información, póngase en contacto con nuestros expertos.