Ramon Ribas - Girona

Casa en venta en Sant Feliu de Llobregat, Barcelona (Roses - Castellbell)

Sant Feliu de Llobregat (Roses - Castellbell)

Ref. 3907 150 m2 30 m2 4 2
venta: 400.000 

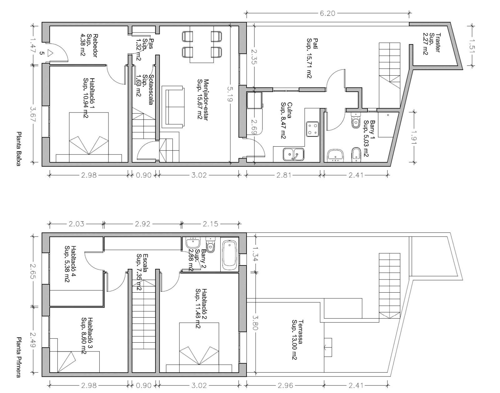
Fincas CALVET les presenta en exclusiva esta encantadora casa de pueblo en zona tranquila de Sant Feliu de Llobregat;

Esta luminosa casa de pueblo en Sant Feliu combina el encanto tradicional con la comodidad de estar lista para entrar a vivir. En la planta baja encontramos un dormitorio, un salón-comedor acogedor, cocina independiente, baño completo y un bonito patio privado, ideal para disfrutar del aire libre, relajarse o compartir comidas con familia y amigos. Cada espacio está pensado para sentirse cómodo y a gusto desde el primer momento.

En la planta superior, la vivienda cuenta con tres dormitorios exteriores que reciben luz durante todo el día, un segundo baño completo y una terraza privada accesible desde el dormitorio principal, perfecta para disfrutar de un momento de tranquilidad. Ubicada en una zona tranquila del pueblo, cerca de todos los servicios y con el encanto de las calles tradicionales de Sant Feliu, esta casa ofrece comodidad, espacios exteriores y carácter propio, lista para empezar a vivir nuevas historias desde el primer día. 

Para concertar visitas o ampliar la información, no dude en contactar con nosotros y estaremos encantados de atenderle.

Índice de alquiler

Año de construcción 1957
Construidos 150 m2
Útiles 105 m2
Precio/m² 2.667
Terraza 30 m2
Dormitorios 4
Baños 2
Cocina Amueblada
Carp. Exterior Aluminio
Carp. Interior Madera
Orientación Este
Estado Buen Estado
Tipo de suelo Gres
Aire acondicionado
Calificación Energética En trámite
Luz
Gas
Agua
Rejas en ventanas

Visita Virtual

Vídeos

La dirección del inmueble es aproximada.
Solicita información

Si deseas más información sobre esta propiedad, por favor, rellena el formulario:

Contacto
Nos avalan
SÍGUENOS EN REDES
logo