Antoni Maria Claret - Sant Quinti

Barcelona (Horta-Guinardó)

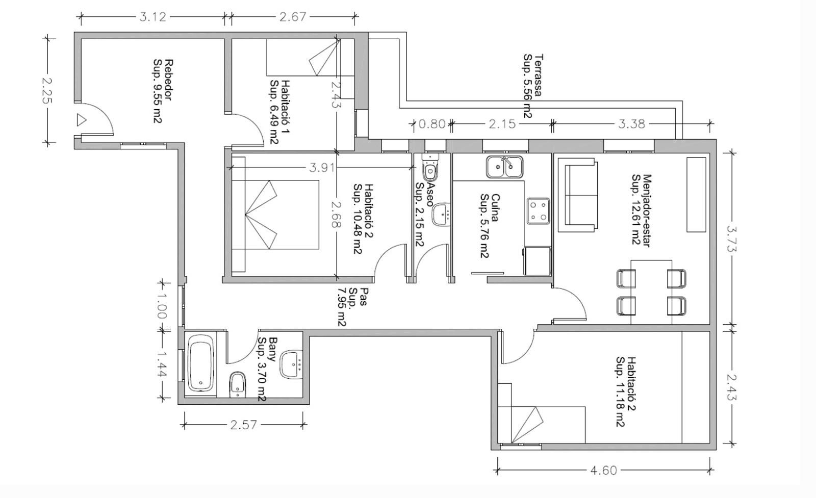
Ref. 3879 80 m2 3 2 1
venta: 280.000 

Vivienda de aproximadamente 80 m² situado en una de las zonas más valoradas del Baix Guinardó, ubicada privilegiadamente frente a los Jardines de Can Miralletes y a escasos pasos del Recinto Modernista de Sant Pau.


La distribución interior consta de un recibidor, tres dormitorios, un cuarto de baño completo y un aseo de cortesía, el salón-comedor, una cocina independiente con posibilidad de ser incorporada al salón, y el balcón que recorre gran parte del lateral de la vivienda.


Para obtener más información sobre esta propiedad, póngase en contacto con nuestros expertos.

Índice de alquiler

Año de construcción 1945
Construidos 80 m2
Precio/m² 3.500
Dormitorios 3
Baños 2
Calefacción Individual
Altura/Planta 1
Carp. Exterior Madera
Carp. Interior Madera
Estado A Reformar
Tipo de suelo Parquet
Ascensor
Calificación Energética (F) VER
Luz
Gas
Agua
Acceso discapacitados

Vídeos

Solicita información

Si deseas más información sobre esta propiedad, por favor, rellena el formulario:

Contacto
Nos avalan
SÍGUENOS EN REDES
logo