Estudio reformado en el corazón de l'Exiample

Piso en venta en Barcelona (Eixample)

Barcelona (Eixample)

Ref. 3831 28 m2 1
venta: 135.000 

Excelente oportunidad de inversión en pleno Eixample, ideal como despacho, o estudio funcional en una ubicación inmejorable.

El piso se sitúa en una de las zonas mejor conectadas y con mayor demanda de toda la ciudad de Barcelona, a tan solo 2 minutos del Hospital Clínic.

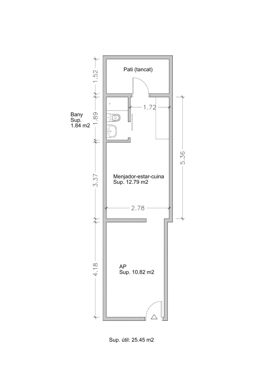
El inmueble se encuentra dentro de la portería y ha sido reformado recientemente. Dispone de dos espacios diferenciados, cocina equipada, lavabo y un patio interior cerrado, ideal para aprovechar como zona de lavandería o pequeño espacio adicional. 

Bien conectado por Metro (L5 - Hospital Clínic) y autobuses (líneas 59, 63, 67, 68, 109, X1, V11 y 141).

Honorarios del 3% + IVA a cargo de la parte compradora.

INMUEBLE SIN CÉDULA DE HABITABILIDAD / NO ES POSIBLE CONSEGUIRLA: En consecuencia, para la transmisión del inmueble, tanto el transmitente como el adquirente deberán declarar expresamente que el destino del bien no será el del uso como vivienda.



Índice de alquiler

Construidos 28 m2
Precio/m² 4.821
Baños 1
Estado Reformado
Calificación Energética En trámite
La dirección del inmueble es aproximada.
Solicita información

Si deseas más información sobre esta propiedad, por favor, rellena el formulario:

Contacto
Nos avalan
SÍGUENOS EN REDES
logo